物件番号
写真画像
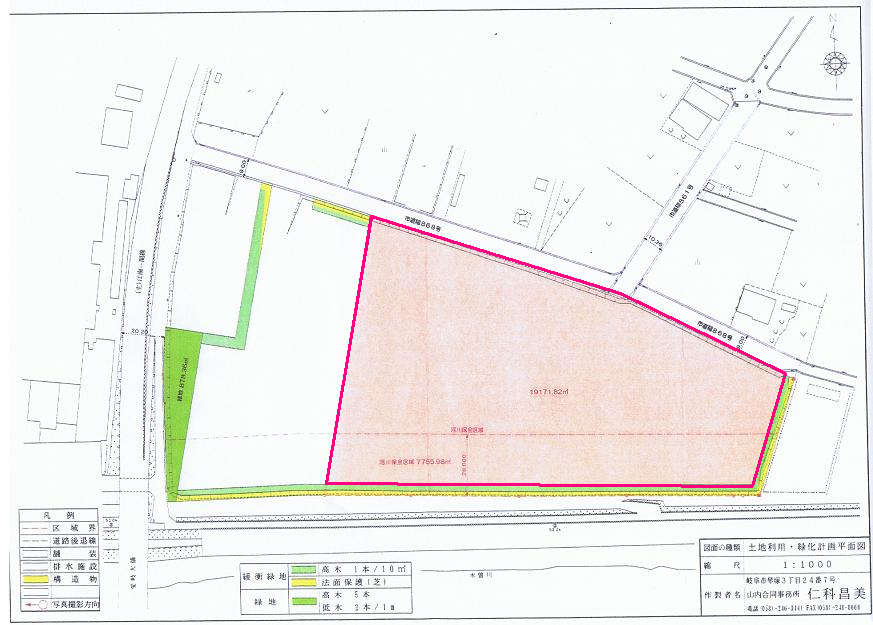
所在地 価格 土地面積
建物面積
間取
構造
築年月
引渡時期
詳細 画像
Bt829
写真あり
各務原市前渡東町七丁目268番地3・268番地8 58,000万円 19171.82m2
 
 
 
 
相談
間取あり 間取あり 写真あり 写真あり